- Woonoppervlakte
- Circa 479 m²
- Perceeloppervlakte
- Circa 675 m²
- Bouwjaar
- Gebouwd in 1977
- Aantal kamers
- 13 kamers (6 slaapkamers)
Op een uitstekende locatie nabij het centrum van Wijchen en NS-station bieden wij deze unieke woning met multifunctionele kantoorruimte aan. Gelegen op een mooi perceel van 675 m², biedt dit veelzijdige pand een gebruiksoppervlakte van maar liefst 479 m². Dankzij de strategische indeling en twee eigen adressen (Meerkoetstraat 2 en Tunnelweg 6) is het pand perfect geschikt voor een combinatie van wonen en werken of als woning met aanleunwoning.
Kenmerken van de woning:
• Woning: 220 m² woonoppervlak met een royale kelder van 95 m²
• Multifunctionele kantoorruimte: 79 m² op de begane grond en 85 m² in de kelder
• Perceel: 675 m²
• Tuin: Zonnige tuin gericht op het zuiden met veel privacy en uitzicht op de molen
• Flexibiliteit: Mogelijkheid om de kantoorbestemming om te zetten naar woonbestemming (onder voorbehoud van gemeentelijke toestemming)
De woning zelf is zeer degelijk gebouwd, altijd goed onderhouden en biedt volop potentie voor modernisering, waardoor u de ruimte naar eigen wens kunt inrichten. De combinatie van woon- en werkruimte biedt talloze mogelijkheden, of u nu een ondernemer bent die zijn bedrijf aan huis wil combineren of een gezin dat behoefte heeft aan een ruime woning met een aparte werkruimte. Of misschien wel de kantoorruimte als extra woonruimte wilt gebruiken voor bijvoorbeeld ouders of kinderen.
Door de twee eigen adressen kunt u het pand optimaal gebruiken voor zowel privé- als zakelijke doeleinden, met aparte ingangen voor woning en kantoor. De tuin, gelegen op het zuiden, biedt een heerlijk rustige buitenruimte met uitzicht op de molen en een hoge mate van privacy.
Met een ligging op een steenworp afstand van het centrum van Wijchen, het NS station, winkelcentrum Noord en basisschool de Paulusschool, is deze woning met multifunctionele kantoorruimte uitstekend gelegen.
Samenvattend:
• Woning met kantoor op een uitstekende locatie
• Ruim perceel van 675 m²
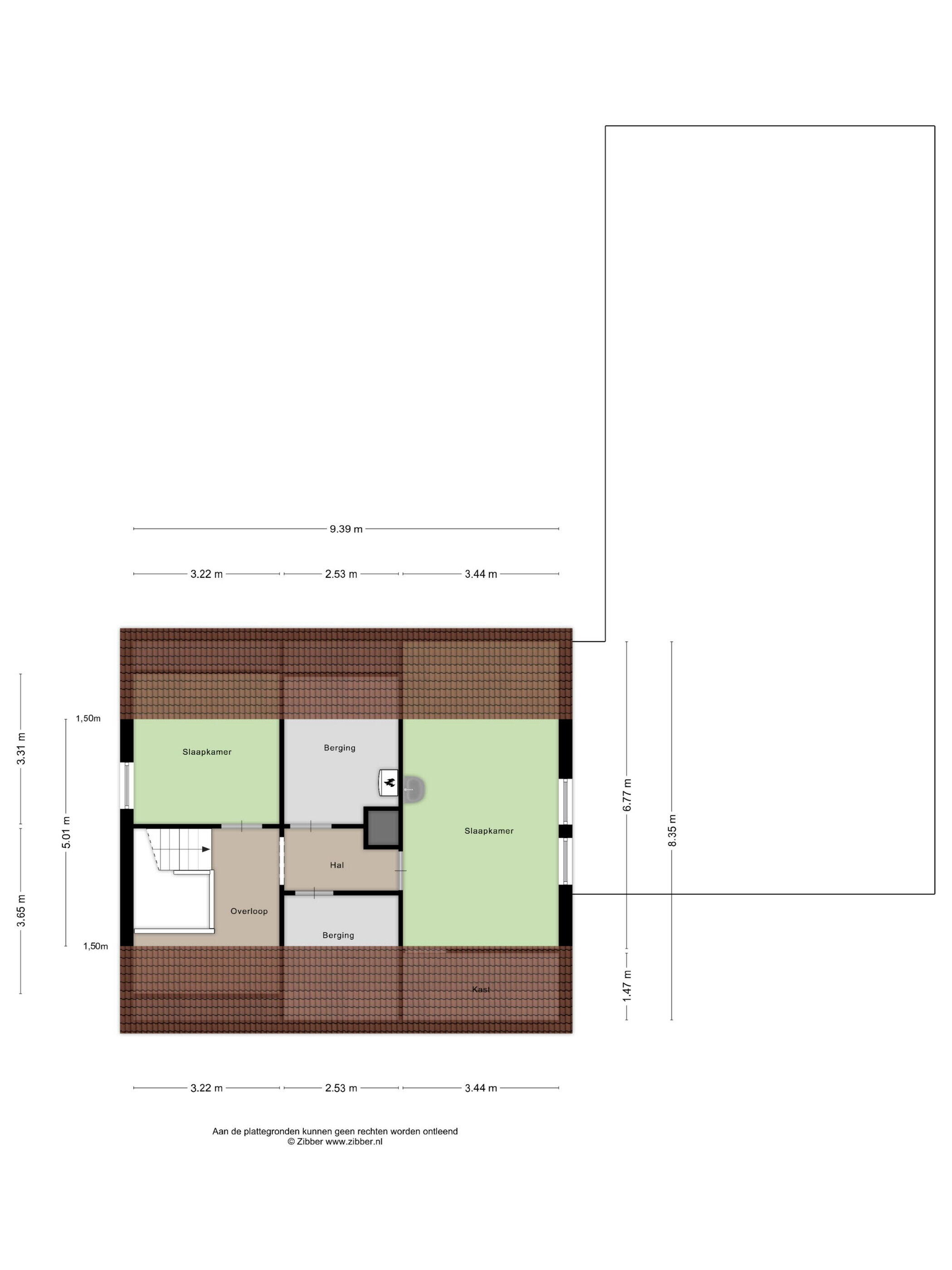
• Groot woonoppervlak van 174 m2 begane grond, 78 m2 op de eerste verdieping, 46 m2 op de tweede verdieping en 180 m2 in de kelder.
• Zonnige tuin met veel privacy en uitzicht op de molen
• Mogelijkheid om kantoor om te zetten naar woonbestemming (onder voorbehoud gemeentelijke toestemming)
Voor meer informatie of het plannen van een bezichtiging, neem dan contact met ons op.
Overdracht
- Vraagprijs
- € 795.000 k.k.
- Status
- Verkocht onder voorbehoud
- Aanvaarding
- In overleg
Bouw
- Object type
- Eengezinswoning, vrijstaande woning
- Soort bouw
- Bestaande bouw
- Bouwjaar
- 1977
- Soort dak
- Zadeldak
Oppervlakte en inhoud
- Woonoppervlakte
- 479 m²
- Perceeloppervlakte
- 675 m²
- Inhoud
- 1950 m³
- Overige inpandige ruimte
- 46 m²
- Gebouwgeb. buitenruimte
- 20 m²
Indeling
- Aantal kamers
- 13 kamers (6 slaapkamers)
- Aantal badkamers
- 1 badkamer
- Badkamervoorzieningen
- Ligbad, toilet, douche, dubbele wastafel
- Aantal woonlagen
- 5 woonlagen
- Voorzieningen
- Rolluiken, tv-kabel, schuifpui, glasvezel kabel
Energie
- Energielabel
- C
- Energielabel registratie
- 14-01-2025
Buitenruimte
- Balkon / dakterras
- Balkon
- Tuin
- Tuin rondom
- ligging tuin
- En bereikbaar via achterom
Garage
- Soort garage
- Geen garage
Parkeergelegenheid
- Soort parkeergelegenheid
- Op eigen terrein
Indicatie hypotheeklasten
Eigen inleg:
Spaargeld / overwaarde
Rente:
Laagste 10-jaars rente
Laagste 10-jaars rente
2,78% - Centraal Beheer - NHG
3,04% - Centraal Beheer - 80%
Laagste 20-jaars rente
3,29% - Centraal Beheer - NHG
3,52% - Centraal Beheer - 80%
Laagste 30-jaars rente
3,41% - Centraal Beheer - NHG
3,7% - Argenta - 80%
Hypotheek:
Bruto maandlasten: € 0 p/m
Netto maandlasten: € 0 p/m
Hoe berekenen we dit?
Het rentepercentage is gebaseerd op de laagste 10 jaars vaste rente voor één hypotheekdeel. De vermelde rente (3.04% zonder NHG) is gecontroleerd op 28-04-2026. Deze berekening is gebaseerd op een annuïteitenhypotheek die volledig wordt afgelost, waarbij de maandlasten gedurende de gehele looptijd gelijk blijven. De werkelijke rente en netto maandlasten kunnen variëren, afhankelijk van uw persoonlijke situatie en de hypotheekverstrekker. Raadpleeg een financieel adviseur voor een nauwkeurige berekening en advies. Aan deze berekening kunnen geen rechten worden ontleend; het dient enkel als indicatie.
Documentatie
Kadastrale kaart
Leefomgeving
Brochure
WOZ waarderapport
BAG uittreksel
Plattegronden PDF
Bezoek onze website
Inloggen move.nl
Bezichtiging
Bod uitbrengen
Waardebepaling
Zoekopdracht
Alles downloaden
Zonnegrenzen bekijken
Op de kaart
Inwoners in Wijchen
Cijfers voor postcodegebied 6601
- Totaal aantal inwoners
- 36260 inwoners
- Mannen
- 49%
- Vrouwen
- 51%
Inwoners in Wijchen
Cijfers voor postcodegebied 6601
- tot 15 jaar
- 12%
- 15 tot 25 jaar
- 13%
- 25 tot 35 jaar
- 19%
- 45 tot 65 jaar
- 34%
- 65 en ouder
- 21.7%
Huishoudens in Wijchen
Cijfers voor postcodegebied 6601
- Eenpersoons zonder kinderen
- 27%
- Meerpersoons zonder kinderen
- 32%
- Huishoudens zonder kinderen
- 59%
Huishoudens in Wijchen
Cijfers voor postcodegebied 6601
- Huishoudens met één kind
- 20%
- Huishoudens met meerdere kinderen
- 21%
- Huishoudens met kinderen
- 41%
Woningen in Wijchen
Cijfers voor postcodegebied 6601
- Woningen voor 1945
- 2%
- Woningen tussen 1945 en 1965
- 5%
- Woningen tussen 1965 en 1975
- 49%
- Woningen tussen 1975 en 1985
- 19%
- Woningen tussen 1985 en 1995
- 3%
Woningen in Wijchen
Cijfers voor postcodegebied 6601
- Woningen tussen 1995 en 2005
- 5%
- Woningen tussen 2005 en 2015
- 15%
- Woningen na 2015
- 2%
- Huurwoningen
- 40%
- Koopwoningen
- 60%
Overige in Wijchen
Cijfers voor postcodegebied 6601
- Gemiddelde WOZ waarde
- € 309.000,-
- Personen onder de 65 met uitkering
- 10%
Overige in Wijchen
Cijfers voor postcodegebied 6601
- Adressen per km²
- 1700
- Stedelijkheid (schaal 1 op 5)
- 80%
Korte feiten over Wijchen
Wijchen is de hoofdplaats van de gemeente Wijchen in de Nederlandse provincie Gelderland. De plaats is met 36.625 inwoners (op 1 januari 2021) de grootste in de gelijknamige gemeente van bijna 41.000 inwoners. Wijchen ligt aan de zuidgrens van Gelderland, tegen Noord-Brabant aan.
Indien u vragen heeft of u wilt een bezichtiging inplannen, dan kunt u gebruik maken van het formulier hiernaast. Er zal daarna op korte termijn contact met u worden opgenomen.
Kasteellaan 23
6602 DB, Wijchen
024 64 90100 binnendienst@driessenmakelaardij.nl www.driessenmakelaardij.nlContact opnemen
Al 40 jaar uw huismakelaar
Ondernemende makelaar met ambitie
U wilt een huis kopen, verkopen of laten taxeren. Het liefst schakelt u een betrouwbare makelaar in bij u in de buurt. Maar hoe vindt u precies de makelaar die het best bij u past? Het aanbod is al zo groot.
Driessen Makelaardij maakt uw keuze een stuk gemakkelijker. Hoe? Allereerst zijn we al veertig jaar een begrip in de regio. Met een kantoor in Wijchen en in Nijmegen kennen wij de lokale huizenmarkt op ons duimpje. En niet onbelangrijk: de huizenmarkt kent ons. ‘Want vaak is de eerste stap van een woningzoeker de stap naar ons kantoor.’ Hierdoor weten wij vraag en aanbod snel bij elkaar te brengen en perfect in te spelen op de wensen van klanten en potentiële klanten. Bovendien zijn we aangesloten bij de NVM, de grootste brancheorganisatie in de makelaardij. Onze mensen zijn dus uitstekend in staat het hele aan- en verkooptraject van begin tot eind professioneel te begeleiden.
Uw ambitie is onze ambitie. Dat wil zeggen: u verwacht van ons dat we tot het uiterste gaan u die kwaliteit te bieden waarom we al zo lang bekend staan. Daar mag u ons aan houden!
Nieuwste reviews
-
Tunnelweg 140
Fijn contact en inhoudelijk goed meegedacht en geholpen. Ook de hulp bij afspraken heeft ons fijn ontzorgt bij een verkoop op afstand.
-
Homberg 1301
Pim Driessen en zijn team hebben ons uitstekend begeleid bij het vinden en kopen van onze nieuwe woning en verkopen van onze oude woning. Ze...
-
Flamingostraat 22
Goede begeleiding, en je kunt altijd met tussentijdse vragen terecht.Ook de verkoop/koop begeleiding, naar kopers en verkopers verliep heel...